802-886-1917

Octagon Timber Frame

Chapel for Holy Apostles

The Chapel for the Holy Apostles is a college and seminary in Cromwell, CT. Vermont Timber Works constructed a massive, octagon timber frame for the college.

We worked with Don Hammerberg Associates, Architects, John Jack Delaney, P.E. and Sullivan Brothers, General Contractors on this project.

All of our frames are handcrafted to meet exact project requirements, and we enjoy working with our clients to make sure the details – from design to finish – are just right.

If you like this timber frame, or have any timber work questions, we invite you to get in contact or ask an expert!

Have a Question?

Explore the Finished Chapel

Exterior of Chapel for Holy apostles Church with an Octagon Timber Frame

Heavy Timber Church Exterior

Interior of the Chapel for Holy Apostles Church

The Nave

Balcony overlooking the Altar in the Chapel For Holy Apostles Church

From the Balcony

Close up of the steel compression ring and timbers in the Octagon Timber Frame in the Chapel for Holy Apostles Church

Steel Compression Ring

Arched Glulam Beam in the Chapel for Holy Apostles Church

Arched Glulam Beam

The altar with Timber Trusses in the Chapel For Holy Apostles

The Altar

Close up of the steel compression ring and timbers in the Octagon Timber Frame in the Chapel for Holy Apostles

Finials

EXPLORE THE CHURCH

It is a heavy timber frame octagon with a sixty foot span. The apex was constructed using a classic tension ring/compression ring. The Sacristy, Alter and Entry have scissor trusses with hand carved finials. The wood is douglas fir with two coats of shop applied spar urethane.

Octagon Frame

Chapel Ceiling Beams

Compression Ring

SEE THE ASSEMBLY & RAISING

After a timber frame has been fabricated in our Vermont shop, our crew often travels to the job site to assemble and raise the frame. The same people who cut the frame do the assembly.

Timber Wall Raising

Raising The First Bent

Timber Posts with Glulam Arches

Raising The Second Bent

Setting A Scissor Truss

New Catholic Seminary Chapel Construction

Setting The Bell Tower

Trimming a Tenon Above Timber Finial

Trimming a Tenon

King Post Finials

King Post Finials

Timber Truss Ready to Fly

Timber Truss Ready to Fly

The Bell Tower

More Churches

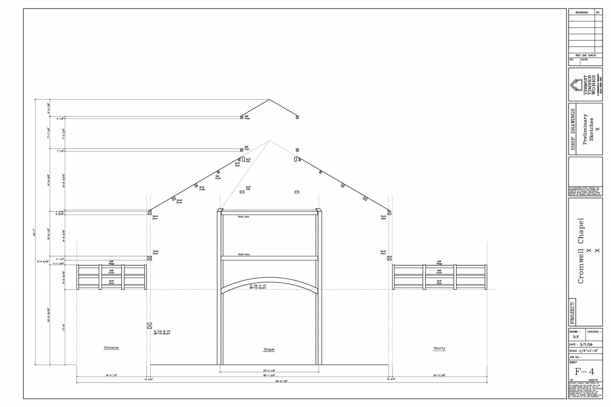
SEE THE DRAWINGS & PLANS

The timber frame design process involves a series of sketches and review with the client and their architect — including a 3D model of the frame — until there is an approved final design. With the final design, detailed 2D shop drawings are created and used to fabricate the frame.

3D Model of Church

Frame Plans

Bent Profiles

More Bent Profiles

Follow
Vermont Timber Works