Spring is finally here in New England! Daffodils are blooming, tulips are smiling at us, and allergies abound. Now is a great time to be thinking about building that timber frame you’ve been dreaming of. Here at Vermont Timber Works we will walk you through the steps of construction, one step at a time.
Our clients call us or email us about their potential projects, and we have the experience and know-how to lead you in the right direction. We want our clients to make the best decisions for their project, and can ensure that you avoid common pitfalls that they may regret down the line.
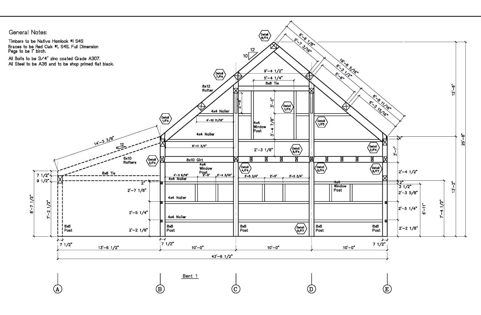
Step one is coming up with a design that fits the clients’ needs and budget. Our design and engineering team has the software to come up with some very cool designs, custom-made for each client. Do you want dormers? Purlins or rafters? Curved braces or straight? What species of wood? We approach each of our projects with a very high level of customization.
Next, once we have agreed on a design, we will order the materials and begin the shop drawings. This is the time to make sure that we are on the same page as the architect and the client.
The next step is when the material arrives in the shop. We unload the truck and bring the timbers into our shop, where they are carefully layed out and fabricated according to the prints. Once the joinery has been cut, our finish crew cleans and stains the timbers. All of our projects include one coat of stain.
We then put the timbers together in packages ready to ship to the job site. Depending on the project we oftentimes assemble the trusses and put them on the back of the truck.
We can then send a crew to the job site, which is ready for the timber frame!
Finally we can raise the frame on site. It is really an amazing sight to see a crane raise each of the bents and to see our skilled crew put the pieces together.
At long last, a completed timber frame!
Give us a call at 802 886 1917 and tell us about your project! We love to talk about timber frames, and to give you the timber frame that you want.







