802-886-1917

Cathedral Ceiling Trusses

Christ Episcopal

Exterior of Grace Episcopal Church

Vermont Timber Works hand crafted scissor and hammer beam trusses for Grace Episcopal church, which is located in Springfield, MO.

Morelock-Ross Builders and Marshall Walters Woody Architects both worked on this project as well.

All of our timber is handcrafted to meet exact project requirements, and we enjoy working with our clients to make sure the details – from design to finish – are just right.

If you like these church trusses, or have timber work questions, we invite you to get in contact or ask an expert!

Have a Question?

EXPLORE THE CHURCH

The timber used for the trusses is Douglas Fir with a dark stain. The hammer beam trusses are reinforced with steel tie rods that resolve spreading forces.

Timber Truss Flying

Crane Placing A Timber Truss

Arched Church Truss with Steel Tie Rod

Hammer Beam Trusses with Steel Tie Rods

Steel & Timber Joinery

Cloister with Scissor Trusses

ASSEMBLY & RAISING

After a timber frame has been fabricated, our crew often travels to the job site to assemble and raise the frame. The same people who cut the frame do the assembly.

Heavy Timber Truss

Heavy Timber Truss

Assembly & Raising
Arched Church Truss with Crane

Crane Raising A Truss

Post and Beam Truss Installation

Truss Installation

Heavy Timber Truss Church Construction

Installed Trusses

More Churches

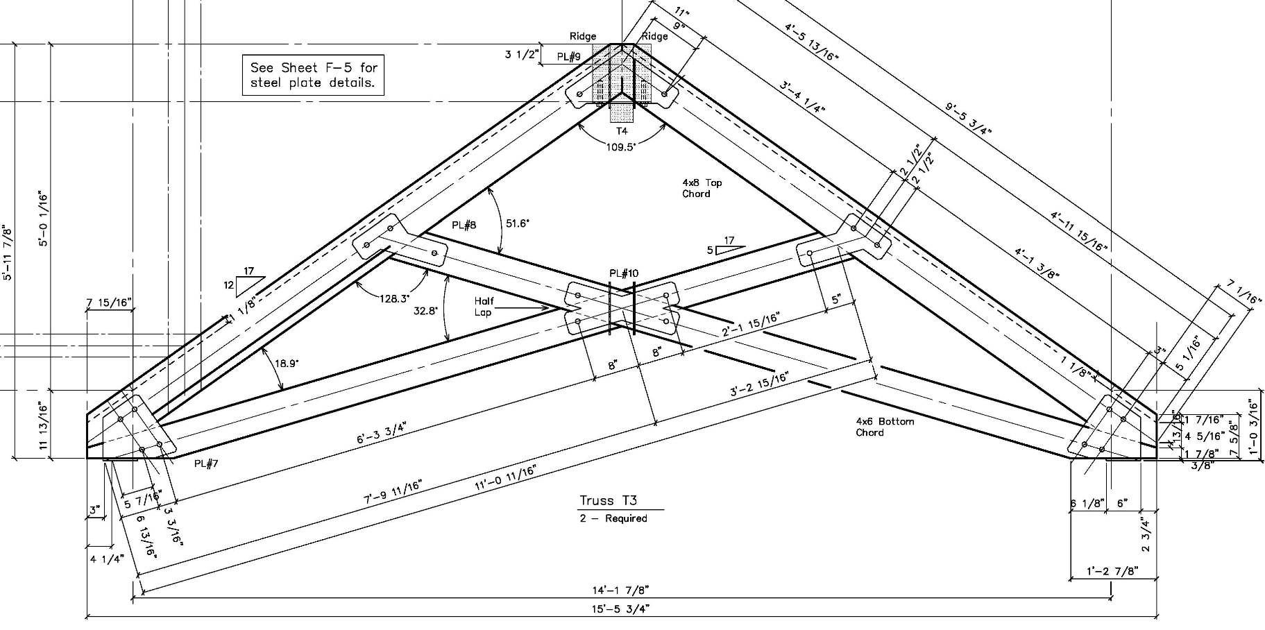
DRAWING & PLANNING

The design process involves a series of sketches and review with the client and their architect — including a 3D model of the frame — until there is an approved final design. With the final design, detailed 2D shop drawings are created and used to fabricate the frame.

Have a Question?
Follow
Vermont Timber Works